Sanierung und Erweiterung der Sanitäranlagen für Besucher und Mitarbeiter sowie Erneuerung der Bühnentechnik und der Technikräume, Schaubude Puppentheater, Berlin

pup_projekt_800x_wc_startbild_alt_hochkant.png

Der WC-Vorraum

Die Gestaltung folgt klaren Linien, bleibt zeitlos und zurückhaltend.

pup_projekt_768x_gebaeude.png

Gebäude

Das Puppentheater der Schaubude nimmt sowohl das EG als auch das 1. OG ein.

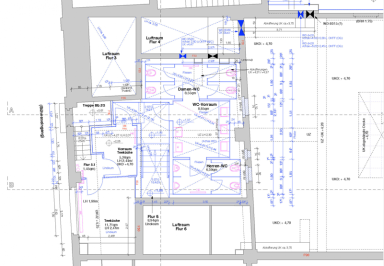
pup_projekt_800x_grundriss.png

Grundriss OG

Die ehemaligen Technikräume wurden zu einer WC-Anlage umgebaut.

Auftraggeber

Land Berlin vertreten durch die Senatsverwaltung für Stadtentwicklung

Bearbeitungszeitraum

2010

Leistung

Planung der Sanierung und Erweiterung
HOAI-LP 5 - 9

Maßnahmen

  • Schaffung einer Sanitäranlage für Besucher und Mitarbeiter in den ehemaligen Technikräumen des Theaters
  • Neubau einer rollstuhlgerechten WC-Anlage
  • Neuordnung und Umbau der Räumlichkeiten für Technik und technischen Mitarbeiter
  • Erneuerung der Bühnentechnik
Der WC-VorraumGebäudeGrundriss OG